utopiad
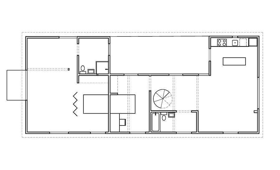
risa ranch cabana. pope valley, california. 2005.