utopiad
sawtooth butterfly. small affordable climate-responsive home. los angeles. 2016-18

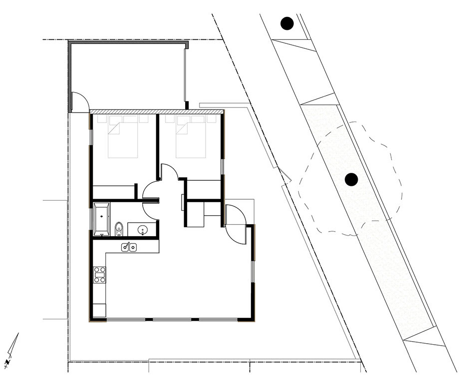
the goal of this project was to create a southern california prototype for climate-responsive small affordable homes. the roof slopes are oriented with attention to the path of the sun and seasonal interior climatic needs. roof profile is a 'sawtooth-butterfly' composed of three strong interrelated geometries consistent in height and massing with the existing neighboring buildings. the sawtooth form was generated by the desire to maximize daylight in the living spaces on a site that is shaded by taller neighboring buildings along the south property line. the kitchen-living room and two bedrooms have clerestory windows to allow sunlight inside during the winter to provide heat gain on the rear high-thermal-mass watershed block walls, but are shaded in the summer and hopper open to ventilate out heat from their location at the highest point of the ceiling - this is a passively heated and cooled house that is responsive to the climate to reduce the need for mechanical systems. the garage roof slope 'butterflys' back in the opposite direction so that it is perpendicular to the sun in order to maximize roof mounted solar panel array efficiency.

 

the facades are clad in thermacork shiplap panels, with no visible fasteners. this is a natural renewable material that has high insulating value, and a beautiful bark-like color that blends in wonderfully with the evergreen pear tree on the parkway out front and the surrounding trees on isabel street and the hillside.

 

the interior configuration of rooms and entrances is organized to enhance visual connection to the street and front yard.  the interior aesthetic celebrates a high level of craftsmanship and structure as ornament with new exposed structural select plywood decking and roof rafters - a nod to southern california's craftsman legacy and sawtooth industrial building typology. the walls are a lime plaster to give a high performance, natural warmth to the interior, and does not require paint. the floors were cut from a local felled shamel ash that was salvaged and milled by angel city lumber.  the kitchen countertops were custom concrete with exposed river rock aggregate salvaged from the nearby los angeles river. 17' tall, single story, 721sf residence with 192sf garage on a 1,674sf lot.

the project was conceived and designed together with Michael Tessler of Responsive Homes, the owner of the home.

structural engineering for the project by Mark Ficinski.

 

original renderings for community design approval